Coffin tanks are often put forward as a solution for residential sprinkler systems, but do they live up to their reputation?

Table of Contents
What are coffin tanks?
Coffin tanks get their name from their shape. They’re short in height, narrow, and long. This minimises their weight and makes them ideal for fitting through loft hatches as well as other restricted spaces. They are also sometimes referred to by other names, such as low level cold water cisterns, or loft tanks.
When are coffin tanks considered?
Although alternatives to coffin tanks should be considered in the first instance: coffin tanks absolutely have a legitimate purpose in your home for other sytems.
Coffin tanks are typically installed in retrofit projects, where an older tank needs replacing and there is limited room for movement. They may also be installed in new builds, particularly in unoccupied attic spaces. They tend to be placed in out of the way locations, where minimum preparatory work is desirable.
Services which also use these tanks include drinkable water and rain water harvesting. Some of the older central heating systems (which use a cistern rather than a combination boiler) may also use similar tanks.
Why wouldn’t you want them for fire suppression?
The standards and regulations for water, sprinkler, and mist include safeguards which reduce the effective capacity of your tank. This is often overlooked by sprinkler installers and can mean that either more tanks need to be installed than were planned for, or your system is left with too little water (or too few components) to work properly.
Vendors generally advertise their tanks using the brim capacity of the tank. This details the amount of water which can be stored in a tank without any modifications attached. In other words: no pipes in and no pipes out. This is a perfectly reasonable way to advertise these tanks. Different systems will need different modifications so it isn’t possible for tank suppliers to predict the final working capacity without a conversation with the buyer about the application. Even tanks marked as ‘sprinker tanks’ cannot have advertise a final effective capacity because this figure depends upon the pipe sizes chosen, which in turn depends upon the system design and the pump(s).
For a full explanation on why sprinkler tanks require these modifications, please check out our post on sprinkler tank regulations. A key example is the overflow pipe which is there to prevent water overflowing and flooding your property.
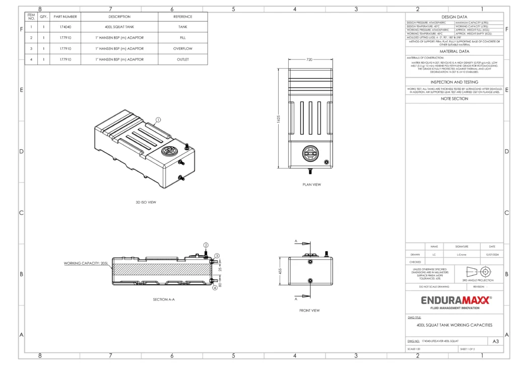
However, it can be seen from the technical drawings below, that these modifications can have a detrimental impact on your system, if they haven’t been allowed for. The advertised volume of the coffin tank below is 400 litres. Once we include our modifications, this drops to 205 litres. To actually achieve a 400 litre supply, we would need two of these tanks. Already, the cost has doubled.


It isn’t simply the cost of the tank which doubles too. Each tank will need its own set of accompanying components, such as:
- Tank alarm;
- Alarm probes;
- Ballcock;
- Lockable ball valves;
- and so on…
What alternatives are available?
It can be seen from the example above that the regulations take away height. One of the most appealing aspects of coffin tanks is the fact that their short stature distributes weight across a wide base. Yet the regulations counter this benefit and disproportionately reserve space for safeguards.
The solution is to install a taller tank. The example below is also for 400 litre tank, but this is taller rather than wider. It can be seen that no where near as much volume is lost through the modifications. The working capacity (effective capacity) of this configuration is 340 litres, despite also having started at 400 litres. The end result is that using a taller tank has increased working capacity (aka effective capacity) by over 65%.

In practice, ceilings often need to be reinforced to some extent even for coffin tanks. While these calculations are being carried out, reviewed, and approved (and any subsequent works are carried out) it often isn’t too big of a jump to ensure this would also accommodate the taller tank. Both tanks above would be around 450kg and although that weight is distributed differently, your structural works will likely include for a larger base than simply the bottom of the tank.
Allowing for taller tanks, when possible, can reduce the number of tanks you require for your sprinkler project. In practice, we are typically able to reduce the number of tanks from four coffin tanks, to a single tank for a standard dwelling by using these principles. The cost savings for the system should speak for themselves.
Is there ever a time to use coffin tanks for sprinkler systems?
Provided that the principles above are applied, there’s no reason that coffin tanks (albeit additional coffin tanks) couldn’t be included. In fact, there are some instances where coffin tanks may be the only viable option. Examples are listed below and assume that there is only one location available for the tanks:
- When there is limited headroom, although enough space should remain for maintenance access;
- When the weight limits in the area are known and can already accommodate coffin tanks (but not a taller tank) and additional construction works (or time lost) would cost more than the cost saved from reducing the number of tanks;
- When the access point can only accommodate a coffin tank and alternative access solutions would cost more than would otherwise be saved, or time limits are too restrictive.
In any case, it’s always sensible to check with your installer what options may be available.
Is there anything else you should know about tanks?
Tanks are often the most challenging aspects of mist and sprinkler installations. This is why we offer a free CPD on residential tank sizing. If this is on your mind, then book your session today.
If you found this post useful, feel free to share it and to also take a look at our other resources over at the Sprinkler Academy for Developers and Regulators.


